Totoești, județul Iași
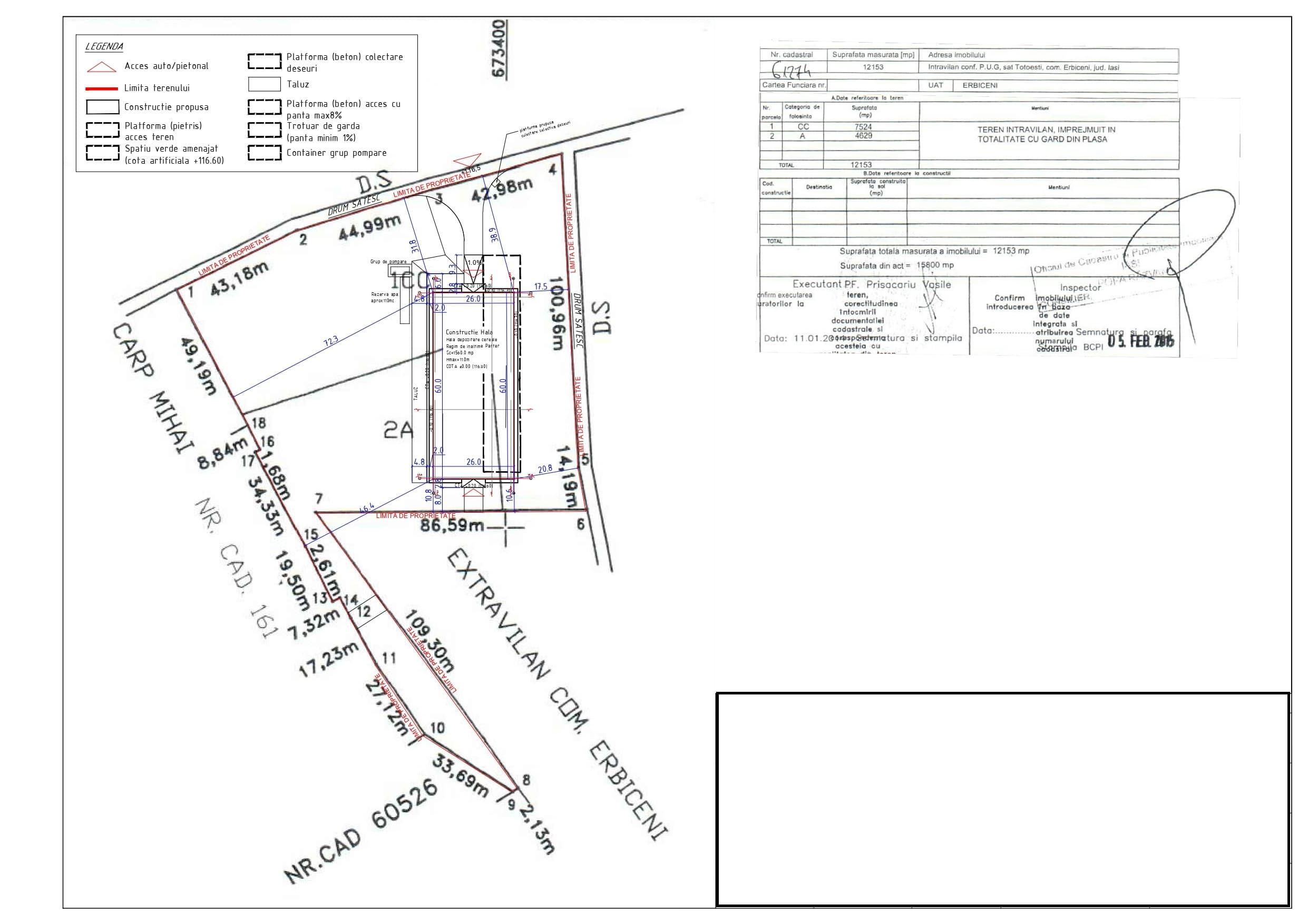
Dimensiuni
1560 mp
Locație
Totoești, Iași
An proiect
2022
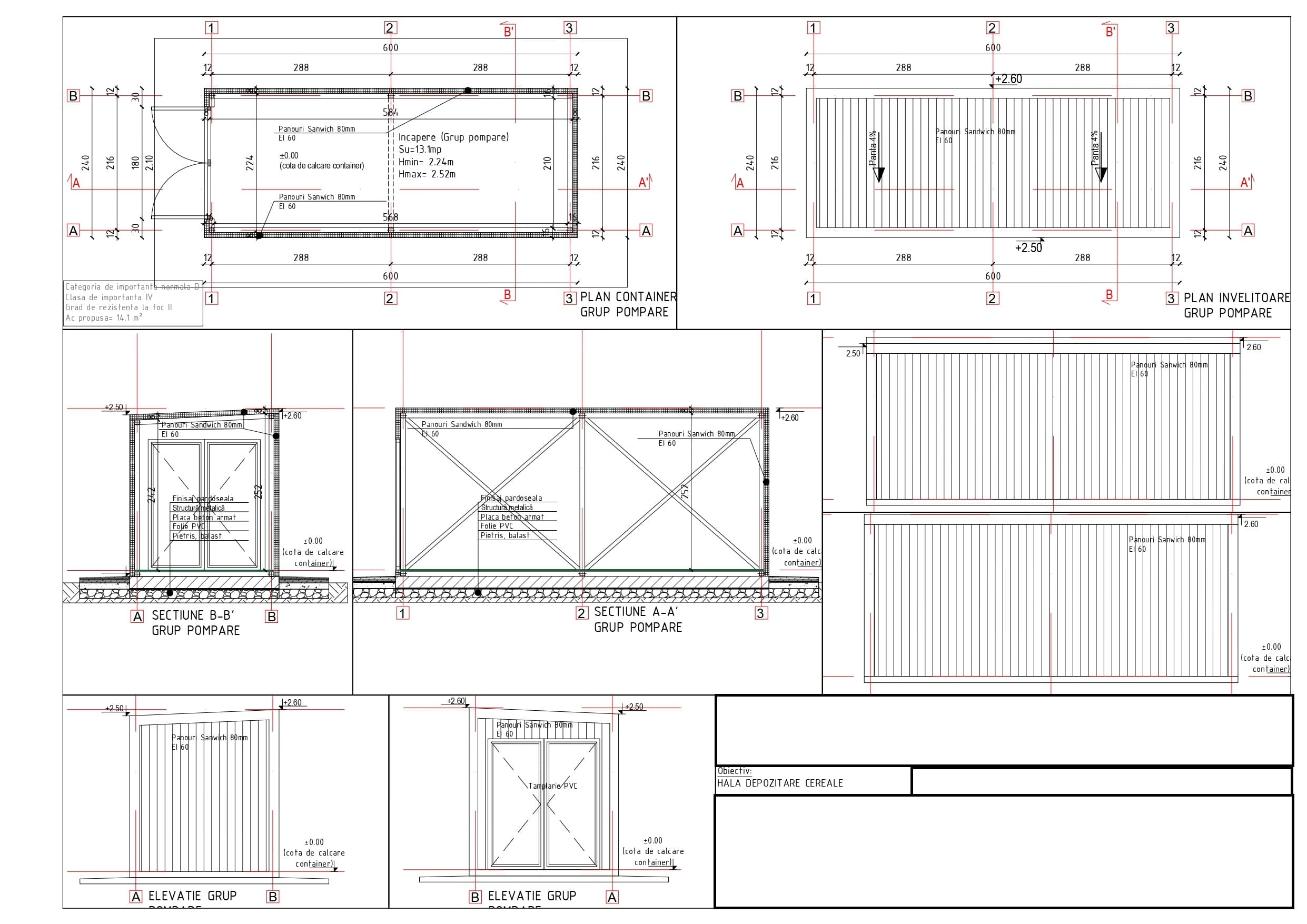
Proiectul de arhitectură pentru o hală cu dimensiuni de 60 m lungime pe 26 m lățime, cu înălțimea zidului de 2 m.

Haide să discutăm despre proiectul tău!
Cu o echipă experimentată de specialiști în construcții, suntem aici pentru a transforma visele tale în realitate.










